Property Detail

1024 Circle Dr

Escondido CA 92025

$950,000

Status: Active

Property Details

Description

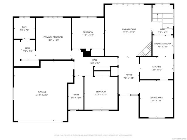
Welcome to 1024 Circle Dr, where big views, walkable convenience, and a smart floorplan all come together on a quiet hillside in central Escondido. While this is a two-story home, the main level lives like a true single-story: you’ll enter into a bright living room anchored by expansive windows that frame sweeping 180-degree north-northwest city and mountain vistas, flowing seamlessly into the dining room and kitchen for effortless everyday living and entertaining. On this same main level you’ll find the primary suite plus two additional guest bedrooms and a full guest bath, along with direct access to the attached garage—no stairs needed for day-to-day life. Wake up in the primary suite to those same panoramic views, or unwind in the living room as the city lights sparkle across the hills at night. Head downstairs and the possibilities open up even more: a generous second living/family room, a fourth bedroom, and a full bathroom create an ideal setup for multigenerational living, long-term guests, a teen retreat, or a private work-from-home suite. From here, step out to an expansive covered deck plus an additional viewing deck and terraced backyard area—all designed to soak in the views and enjoy indoor-outdoor living year-round. Recent big-ticket improvements give peace of mind, including a brand new roof installed in June 2025 and a refreshed deck completed in July 2025. When you’re ready to head out, you’re just a few blocks from Grand Avenue’s vibrant restaurants, cafés, breweries, and local entertainment, putting the best of downtown Escondido at your fingertips.

Map Location

Listing provided courtesy of Ryan Prazen of Good Life Property Management. Last updated 2026-03-12 08:23:24.000000. Listing information © 2025 CRMLS.

Ever Eternity
Contact Me
admin Real estate 9:00 AM - 5:00 PM 9:00 AM - 5:00 PM 9:00 AM - 5:00 PM 9:00 AM - 5:00 PM 9:00 AM - 6:00 PM 9:00 AM - 5:00 PM 9:00 AM - 5:00 PM https://static.royacdn.com/Site-90036f5f-a158-4157-839e-06d47f558f76/inside_pages/ever_eternity.JPG realtor # # # https://static.royacdn.com/Site-90036f5f-a158-4157-839e-06d47f558f76/inside_pages/ever_eternity.JPG

Welcome

Meet Ever

Ever Eternity is Your Local Real
Estate Professional

Whether it's your first townhouse, vacation property or coastal dream home, I will work to find the property that's best for you. I am able to anticipate and fulfill each of my clients needs, in order to find the perfect home for them and their family. I am here to work with you, to find the best fit for you, and am excited for the opportunity.

People choose to work with me for my full service expertise, experience and ethics. My base of loyal customers is the reason I am successful in this competitive sales market.

​My attention to detail allows me to find dream homes for buyers, and build thorough home marketing plans for my sellers. I have great pride in my negotiation skills and believe in transparency and full disclosure throughout each deal. I value open communication with my clients and welcome questions from start to close.

https://s3.amazonaws.com/static.organiclead.com/Site-90036f5f-a158-4157-839e-06d47f558f76/homepage/welcome_img.png /*|--------------------------------------------------------------------------| REVIEWS|--------------------------------------------------------------------------*/

"My Mom passed away 1/31/21 needless to say it was a very difficult time for me. I needed help selling my mothers home. I reached out to Ever and he stepped up big! From the beginning he was a true professional great communication skills, great attitude, always made time for me and answered any questions I had. He showed compassion for my situation and went above and beyond to make things as easy as possible for me. Go with Ever you won’t regret it!"

"I worked with Ever through the process of an Estate Sale and sale of a condominium. Throughout the experience he and his team were extremely helpful. I had never been involved with an estate sale previously and was working with the additional factor of not being local. After an initial meeting I was able to deal with he and his team remotely which simplified the entire process and experience. Any questions or issues I had were very quickly addressed and resolved. My entire experience was very positive. Thank You!"

"Ever was simply excellent. He is thorough, approachable and very knowledgable of the house buying process. We appreciated his manner and help throughout our purchase process - he never made us feel pressured to select a house and helped us find a perfect match. He was especially helpful when we needed to juggle urgent travel during the Escrow process, helping us set up power of attorney. We would recommend Ever to any type of buyer and will certainly use him for any future real estate needs that we have."

"I worked with Ever through the process of an Estate Sale and sale of a condominium. Throughout the experience he and his team were extremely helpful. I had never been involved with an estate sale previously and was working with the additional factor of not being local. After an initial meeting I was able to deal with he and his team remotely which simplified the entire process and experience. Any questions or issues I had were very quickly addressed and resolved. My entire experience was very positive. Thank You!"

"My Mom passed away 1/31/21 needless to say it was a very difficult time for me. I needed help selling my mothers home. I reached out to Ever and he stepped up big! From the beginning he was a true professional great communication skills, great attitude, always made time for me and answered any questions I had. He showed compassion for my situation and went above and beyond to make things as easy as possible for me. Go with Ever you won’t regret it!"

"Ever has been my agent through two purchases and one sale. He has a keen sence of the market and knows how best to price and time sales and purchases. He makes sure to get the job done and places the most importance on making his satisfying his clients wishes to the best of his ability. He works well with escrow, property managers, and whomever he needs to speak with."

"Working with Ever was a joy. We had a number of unexpected challenges during the process of selling our house and Ever was consistently there to help, guide, and support us. He was always available for consultation and never lost sight of the immediate issues nor the long term goals. Ever was an exemplary professional in every way and I would highly recommend him."

"Working with Ever was a great experience. Selling our Mom's house was emotionally difficult for us. Ever guided us thru the process and made it smooth and easy as possible for us. He responded to all of our questions with professionalism and knowledge. He kept us informed of every action during the sale. We trusted his advice and insights and he delivered on everything he said. The sale was quick and smooth and we couldn't be happier. We highly recommend Ever. He definitely knows his business."

/*|--------------------------------------------------------------------------| FEATURED STAFF|--------------------------------------------------------------------------*/