Property Detail

485 Silver Leaf

Oroville CA 95966

$189,000

Status: Active

Property Details

Description

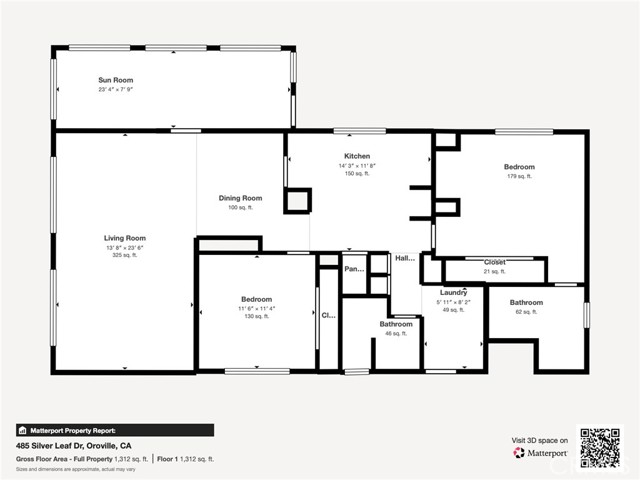
Get ready to fall in love with this exceptionally clean 2-bedroom, 2-bathroom manufactured home, securely set on a 433A foundation in the desirable Kelly Ridge area of Oroville! This home is ready for its next owner with big-ticket upgrades already handled! You'll stay comfortable year-round thanks to the HVAC system replaced in 2022 and the new water heater installed in 2023. Step inside and enjoy the fresh feeling of new living room carpet from 2023 paired with beautiful, new luxury vinyl plank flooring in the kitchen, hall, and laundry areas. Plus, peace of mind comes with knowing all the plumbing was replaced in 2011, and the home features double-pane windows throughout for energy efficiency. The foam roofing is approximately 11 years old. The kitchen is a chef's dream, boasting tons of storage, including a walk-in pantry, a gas range, double ovens, and all appliances, including the dishwasher and refrigerator, are ready to go. You'll also appreciate the separate indoor laundry room, complete with a washer, electric dryer, and extra storage space. The large living room is flooded with natural light, and the dining room features charming built-ins and a convenient pass-through window to the kitchen. The large primary bedroom offers abundant built-in storage and a generous closet, along with an ensuite bathroom featuring a walk-in shower. A second, well sized bedroom, sits off the kitchen. An added bonus is the sunny, enclosed sunroom off the living room, with double-pane windows—a perfect spot to relax! Outside, this clean property is fully fenced, and there is a spacious, covered, attached carport. This space is fantastic, offering two separate storage sheds and a handy little workshop with power! Best of all, the backyard provides a lovely view out to the former golf course, now enjoyed as the local frisbee golf course. Don't miss the chance to own this wonderful, turn-key property!

Map Location

Listing provided courtesy of Kimberly Jacobi of Century 21 Select Real Estate, Inc.. Last updated 2025-12-17 09:14:33.000000. Listing information © 2025 CRMLS.

Ever Eternity
Contact Me
admin Real estate 9:00 AM - 5:00 PM 9:00 AM - 5:00 PM 9:00 AM - 5:00 PM 9:00 AM - 5:00 PM 9:00 AM - 6:00 PM 9:00 AM - 5:00 PM 9:00 AM - 5:00 PM https://static.royacdn.com/Site-90036f5f-a158-4157-839e-06d47f558f76/inside_pages/ever_eternity.JPG realtor # # # https://static.royacdn.com/Site-90036f5f-a158-4157-839e-06d47f558f76/inside_pages/ever_eternity.JPG

Welcome

Meet Ever

Ever Eternity is Your Local Real
Estate Professional

Whether it's your first townhouse, vacation property or coastal dream home, I will work to find the property that's best for you. I am able to anticipate and fulfill each of my clients needs, in order to find the perfect home for them and their family. I am here to work with you, to find the best fit for you, and am excited for the opportunity.

People choose to work with me for my full service expertise, experience and ethics. My base of loyal customers is the reason I am successful in this competitive sales market.

​My attention to detail allows me to find dream homes for buyers, and build thorough home marketing plans for my sellers. I have great pride in my negotiation skills and believe in transparency and full disclosure throughout each deal. I value open communication with my clients and welcome questions from start to close.

https://s3.amazonaws.com/static.organiclead.com/Site-90036f5f-a158-4157-839e-06d47f558f76/homepage/welcome_img.png /*|--------------------------------------------------------------------------| REVIEWS|--------------------------------------------------------------------------*/

"My Mom passed away 1/31/21 needless to say it was a very difficult time for me. I needed help selling my mothers home. I reached out to Ever and he stepped up big! From the beginning he was a true professional great communication skills, great attitude, always made time for me and answered any questions I had. He showed compassion for my situation and went above and beyond to make things as easy as possible for me. Go with Ever you won’t regret it!"

"I worked with Ever through the process of an Estate Sale and sale of a condominium. Throughout the experience he and his team were extremely helpful. I had never been involved with an estate sale previously and was working with the additional factor of not being local. After an initial meeting I was able to deal with he and his team remotely which simplified the entire process and experience. Any questions or issues I had were very quickly addressed and resolved. My entire experience was very positive. Thank You!"

"Ever was simply excellent. He is thorough, approachable and very knowledgable of the house buying process. We appreciated his manner and help throughout our purchase process - he never made us feel pressured to select a house and helped us find a perfect match. He was especially helpful when we needed to juggle urgent travel during the Escrow process, helping us set up power of attorney. We would recommend Ever to any type of buyer and will certainly use him for any future real estate needs that we have."

"I worked with Ever through the process of an Estate Sale and sale of a condominium. Throughout the experience he and his team were extremely helpful. I had never been involved with an estate sale previously and was working with the additional factor of not being local. After an initial meeting I was able to deal with he and his team remotely which simplified the entire process and experience. Any questions or issues I had were very quickly addressed and resolved. My entire experience was very positive. Thank You!"

"My Mom passed away 1/31/21 needless to say it was a very difficult time for me. I needed help selling my mothers home. I reached out to Ever and he stepped up big! From the beginning he was a true professional great communication skills, great attitude, always made time for me and answered any questions I had. He showed compassion for my situation and went above and beyond to make things as easy as possible for me. Go with Ever you won’t regret it!"

"Ever has been my agent through two purchases and one sale. He has a keen sence of the market and knows how best to price and time sales and purchases. He makes sure to get the job done and places the most importance on making his satisfying his clients wishes to the best of his ability. He works well with escrow, property managers, and whomever he needs to speak with."

"Working with Ever was a joy. We had a number of unexpected challenges during the process of selling our house and Ever was consistently there to help, guide, and support us. He was always available for consultation and never lost sight of the immediate issues nor the long term goals. Ever was an exemplary professional in every way and I would highly recommend him."

"Working with Ever was a great experience. Selling our Mom's house was emotionally difficult for us. Ever guided us thru the process and made it smooth and easy as possible for us. He responded to all of our questions with professionalism and knowledge. He kept us informed of every action during the sale. We trusted his advice and insights and he delivered on everything he said. The sale was quick and smooth and we couldn't be happier. We highly recommend Ever. He definitely knows his business."

/*|--------------------------------------------------------------------------| FEATURED STAFF|--------------------------------------------------------------------------*/